El cancel deslizable Slider es ideal para resolver áreas pequeñas ya que su apertura permite un paso libre al 95%.
Es la mejor opción para lugares reducidos, proporcionando un toque de elegancia y transparencia al espacio.
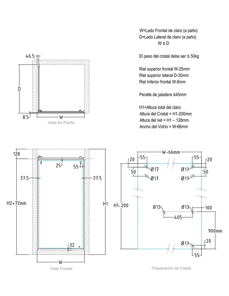
Para uso de una sola hoja de cristal, diseñado para espacios menores a 1.0m, para cristal templado de 9mm.
Incluye:
- Herrajes
- Rieles superiores
- Jambas laterales
- Perfil inferior
- Policarbonatos (vinilos) magnéticos a 90°
Nota: No se incluye jaladera ni toallero.
Materiales:
- Acero inox. 304 (rieles y herrajes)
- Aluminio (jambas laterales y perfil inferior)
- Acabados: Satinado y Negro
- Medidas máximas de claro: 1.00 m de ancho por 2.0 m de altura
- Peso máximo del panel: 50kg



